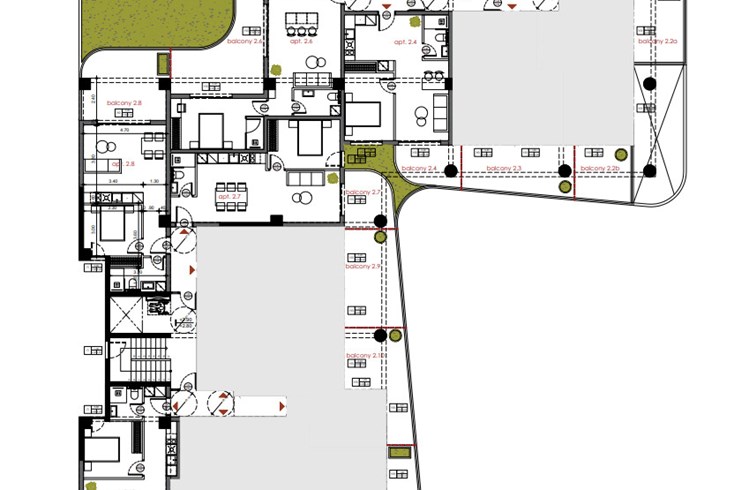
Na sprzedaż mieszkanie o powierzchni 85 metrów kwadratów w Salonikach. Mieszkanie znajduje się na na trzecim piętrze piętrze i skłąda się z 2 sypialnie, salon z kuchnią, jedna łazienka z prysznicem oraz WC, spiżarnia. Apartament ma układ przedni Posiada także zawiera kolektor słoneczny, parking, winda, ogrzewanie, spiżarnia.




























